Compra

Prédio
1.300.000€
Clique na imagem para ver mais fotos
Porto
Bonfim
Quartos
Garagem
Casas de Banho
Ref
PROV ED/0102
Estado
Como novo
Area Útil
212.00m2
Partilhar
Descrição:

EXCELENTE Oportunidade de Investimento!

EDIFÍCIO C/ 5 FRAÇÕES | ESTÚDIOS | C/ TERRAÇOS e JARDIM | BONFIM

Muito próximo à Igreja do Bonfim. Em zona onde ainda são concedidas Licenças AL (ALOJAMENTO LOCAL)

A 5 minutos a pé encontra-se a estação de METRO do Campo 24 de Agosto e o novo Terminal Intermodal de Campanhã (Metro, Comboio e rede de Expressos).
Na Rua circulam inúmeros autocarros que terminam a sua marcha no mercado do Bolhão.

Estes fantásticos ESTÚDIOS têm uma configuração muito prática e funcional, com muita luminosidade que lhe é conferida pelas grandes superfícies envidraçadas.

Trata-se sem duvida de um Investimento com um potencial de valorização Elevado e Seguro.

O Bonfim é o bairro trendy do Porto, na envolvente da Baixa: uma zona residencial de excelência, que está em profunda transformação com comércio local e restaurantes, muito procurada por jovens e estrangeiros, pela sua localização, rede de transportes e pela influência artística da Escola de Belas Artes e Escola Soares dos Reis.

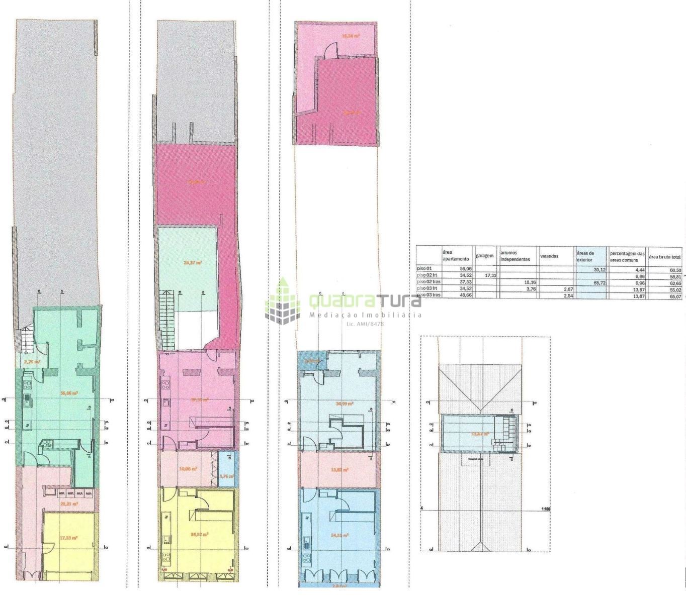
Este projeto contempla apenas 5 frações T0 , distribuídos por 3 pisos.
1º PISO (Térreo) = 1 apartamento c/ 56,06m2 de área + 30,12m2 de área exterior
2º PISO Frente = apartamento c/ 34,52m2 de área + 17,33m2 de Garagem/Box
2º PISO Traseiras = apartamento c/ 37,53m2 de área + 18,16m2 de Arrumos independentes + 68,72m2 de área exterior
3º PISO Frente = apartamento c/ 34,52m2 de área + 3,76m2 de Arrumos independentes + 2,87m2 de Varanda
3º PISO Traseiras = apartamento c/ Mezzanine c/ 48,66m2 de área + 2,54m2 de Varanda

Os apartamentos, uns com varanda outros com terraço e jardim, conjugam design, conforto e funcionalidade, destina-se a um público que privilegia viver na envolvente da Baixa do Porto.

Trata-se de uma zona residencial consolidada, a dois passos da BAIXA da cidade, com Escolas básica e secundárias, com excelentes acessibilidades às principais artérias da cidade.

Trata-se da reconstrução total de um Edifício de charme, ao habitar neste edifício poderá disfrutar de uma localização privilegiada, em grande desenvolvimento e transformação.

O edifício está a:
- 400 metros da Estação de Metro do Campo 24 Agosto
- 1700 metros do Terminal Intermodal de Campanhã
- 1300 metros do Bolhão, Praça D. João I e Baixa do Porto
- 1700 metros do Centro Comercial Alameda e Estádio do Dragão

algumas características:
PAVIMENTOS
- Zonas secas: Soalho de Madeira
- Zonas húmidas: mosaico porcelânico
PAREDES
- Zonas secas: gesso cartonado pintado
- Zonas húmidas: cozinha - Casa de banho - mosaico porcelânico e gesso cartonado hidrófugo pintado
TETOS
- Zonas secas: tetos falsos em gesso cartonado;
- Zonas húmidas: tetos falsos em gesso cartonado hidrófugo
ISOLAMENTOS entre FRAÇÕES
- paredes entre habitações contíguas em bloco térmico
- placas de gesso cartonado e isolamento
CARPINTARIAS
- Portas e armários: MDF Lacado
- Cozinhas: MDF Lacado
INSTALAÇÕES SANITÁRIAS
- Louça sanitária suspensa
- Lavatório de embutir e armário em MDF lacado
- Duche em mosaico porcelânico e resguardo em vidro
- Espelho
- Torneiras misturadoras monocomando
EQUIPAMENTOS DIVERSOS
- Portas de segurança
- Caixilharia de alumínio anodizado com vidro duplo e corte térmico
- Eletrodomésticos
- Videoporteiro
- Aquecimento das águas sanitárias por bomba de calor
- Pré-instalação AR Condicionado

CONSULTE-NOS para melhores Informações e Visita.

Para Vender, Comprar, Arrendar. Não hesite, fale Connosco!

QUADRATURA
...porque cada casa é um caso!

Mais detalhes

  • Nº Pisos: 3
  • Nº apartamentos Piso: 2
  • Nº Fogos: 1
    • Habitação 5
  • Revestimento: Cerâmico
  • Entradas: 1
  • Logradouro: 1
  • Nº Frentes: 1
  • Orientação solar:
    • Norte 1
    • Sul 1
  • Estado:
    • Novo 1
  • Visibilidade:
    • Boa 1
  • Quintal: 1
  • Piso:
    • R/C 1
    • 1
    • 1
  • Devoluto: 1
  • Ar Condicionado:
    • Completo 1
  • Aquecimento água:
    • Eléctrico 1
  • Caixilharia:
    • Alumínio 1
    • Vidros duplos 1
    • Lacada 1
  • Tv por cabo: 1
  • Ventilação mecânica: 1
  • Video-porteiro: 1
  • Extintores: 1
  • Porta de segurança: 1
  • Rede de cablagem estruturada: 1
  • Quartos: -1
    • Pavimento Madeira
    • Acabamento das paredes Pintadas
    • Tectos
      • Tecto falso com focos 1
      • Tecto falso com focos 1
  • Salas:
    • Pavimento Madeira
    • 1
    • Acabamento das paredes Pintadas
    • Tectos
      • Tecto falso com focos 1
      • Tecto falso com focos 1
  • Átrio:
    • Pavimento Madeira
    • Acabamento das paredes Pintadas
    • Tectos
      • Tecto falso com focos 1
      • Tecto falso com focos 1
  • Cozinha:
    • Kitchnette 1
    • Exaustor 1
    • Máquina lavar louça 1
    • Pavimento Madeira
    • Móveis MDF Lacado
    • Placa e forno 1
    • Acabamento das paredes Pintadas
    • Combinado 1
  • WC´s: 0
    • Completo 1
    • Acabamento das paredes Cerâmico
  • Varandas: 1
  • Roupeiros: 1
    • Roupeiros embutidos 1
  • Lavandaria: 1
  • Arrecadação:
    • Cave 1
  • Terraço: 1
  • Escolas: 1
  • Transportes públicos: 1
  • Supermercados e comércio: 1
  • Hospitais clínicas e farmácias: 1
  • Acessos:
    • Transportes públicos 1
    • Metro 1
    • Comboio 1
    • Auto-estrada 1
  • Localização:
    • Centro 1
    • Beira-rio 1
  • Serviços:
    • Centro Comercial 1
    • Supermercados 1
    • Bancos 1
    • Correios 1
    • Farmácia 1
    • Hospital 1
    • Escolas 1
    • Infantário 1
    • Lar de terceira idade 1
    • Universidade 1
    • Centro de Saúde 1
    • Polícia 1
  • Vistas:
    • Jardim 1
    • Áreas verdes 1
    • Prédios 1
    • Cidade 1
  • Zona envolvente:
    • Residencial 1
    • Comercial 1
    • Turística 1


Carregando mapa...