Apartamento T2 Duplex | Av. Fernão Magalhães | Porto
Localizado muito próximo à estação de Metro do Campo 24 de Agosto, em plena Avenida de Fernão de Magalhães, com excelentes acessibilidades a todos os serviços, comodidades e rede de transportes.
O Edifício tem apenas 8 frações.
Permite um estilo de vida contemporâneo, oferece sala e cozinha em aberto (Open Space), áreas amplas, Jardim, varanda e generosas janelas com muita luminosidade.
Exposição solar (Nascente/Poente).
Ao habitar este Edifício usufrui de excelente qualidade de vida, conforto e tranquilidade.
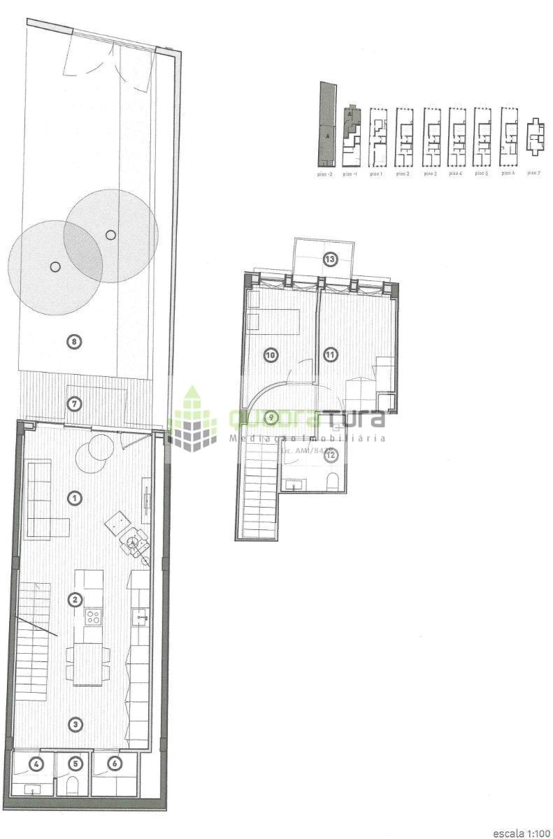
Esta fração T2, é constituída por 2 pisos, com um jardim de 45m2 no piso inferior e uma varanda no piso superior.
algumas características:
- Cozinha equipada
- Ar Condicionado
- Bomba de Calor
- Porta de Segurança
- Roupeiros embutidos
- Varanda e jardim
- Elevador
- Acesso e imóvel adaptados a pessoas com mobilidade reduzida
Para Vender, Comprar, Arrendar. Não hesite, fale Connosco!
QUADRATURA
...porque cada casa é um caso!